新着事業用販売中
\旧歯科診療所。駐車10台可能!多目的に使用が可能な事務所物件。/
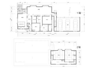
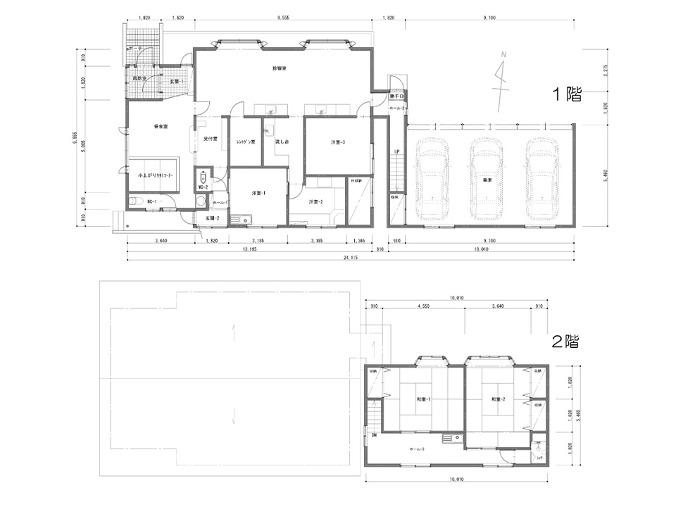
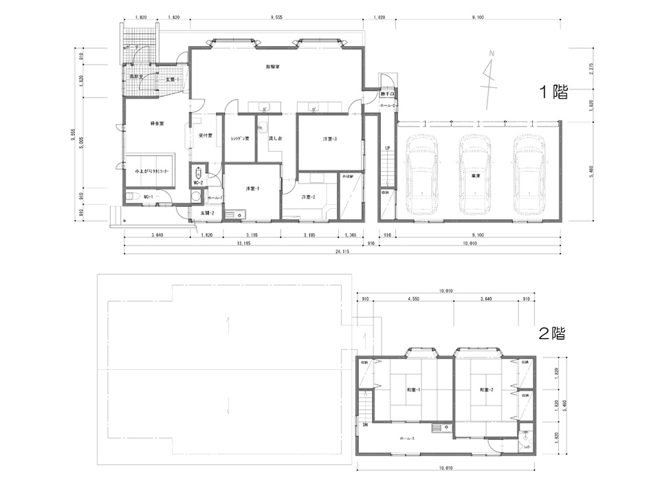
・旧歯科診療所の居抜き物件
・敷地約120坪。
・ゆとりのある木造2階建て。延床面積232.07㎡。
・西側、北側の角地。前面道路はいずれも幅員6m。消雪パイプ整備あり冬季でも安心です。
・駐車場は10台分を確保。来客やスタッフ用としても十分なスペースがあります。
・スーパーが隣接し、日常の利便性も良好。小中川小学校まで徒歩5分の立地。
・現況は空き。お気軽に内覧が可能です。
・既存設備や内装を活かしてクリニックや事務所、店舗での利用が可能です。
| 所在地 | 新潟県燕市次新1048-2 |
|---|---|
| 交通 | JR弥彦線「燕駅」 車約10分(約4.6㎞) 新潟観光「花園町」バス停 徒歩約4分 |
| 学校区 | 小中川小学校区 / 燕北中学校区 |
| 価格 | 1,200万円 |
|---|---|
| 土地面積 | 397.28m²(120.17坪) |
| 向き | 北西 |
| 現況 | 空き |
| 建築条件 | 無 |
| 建ぺい率 | 70% |
| 容積率 | 200% |
| セットバック | |
| 私道負担面積 | |
| 国土法届出 | |
| 敷地の権利形態 | 所有権 |
| 地目 | 宅地 |
|---|---|
| 地勢 | 平坦 |
| 都市計画 | 未線引区域 |
| 用途地域 | 用途地域の指定なし |
| 特別用途地域 | |
| 法令上の制限 | |
| 電気 | 東北電力 |
| ガス | 白根ガス |
| 水道 | 公営水道 |
| 雑排水 | 浄化槽 |
| 汚水 | 浄化槽 |
| 延床面積 | 232.07m²(70.20坪) |
|---|---|
| 間取り | |
| 駐車場 | 敷地内10台可能 |
| 建物構造 | 在来工法(木造) |
|---|---|
| 階数 | 2階建 |
| 築年月 | 1990年6月 |
| 接道状況 | 北側約6.0m公道、西側約6.0m公道 |
|---|---|
| 備考 | ※現況渡し ※元歯科診療所で現在は空き事務所となっております ※駐車場10台可 ※前面道路消雪パイプあり |
| 引渡可能日 | 即可能 |
|---|---|
| 取引態様 | 専任媒介(仲介) |
| 最新物件確認日 | 2025年10月24日 |
|---|
![]()